Sweets & Things Bar

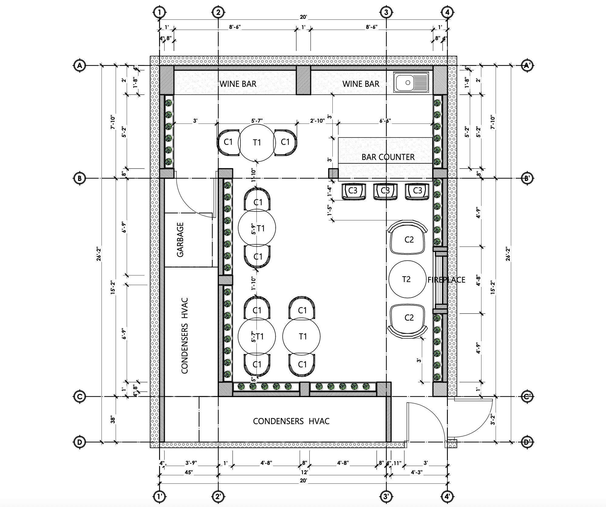
A sculptural and immersive bar experience nestled in a Brooklyn backyard, this project redefines the notion of outdoor hospitality. Enclosed within rhythmic arches and layered tones, the design merges fluid architectural forms with a dynamic palette of textures, shadow play, and botanical accents.

Curved seating, soft velvet textures, and tactile surfaces invite guests to slow down and explore the space. As the sun moves, light filters through geometric cuts in the canopy, casting evolving shadows that transform the mood from day to night—creating moments that are both unexpected and intentional.

At its core, a dramatic marble fireplace framed in an organic sculptural form anchors the space with warmth and elegance. Throughout, subtle nods to rhythm, reflection, and movement shape a multidimensional atmosphere—a bar designed not just to serve, but to surprise and inspire.

Previous
Previous

Lunar Bar Restaurant

Next
Next

Quiet Miami Resistance