Lake Shore Apartment

Located in Toronto, the Lake Shore Apartment is a condo remodel that blends sculptural forms, rich textures, and quiet sophistication. The kitchen features curved cabinetry and dramatic marble, while the living room is anchored by a patina fireplace and playful lighting.

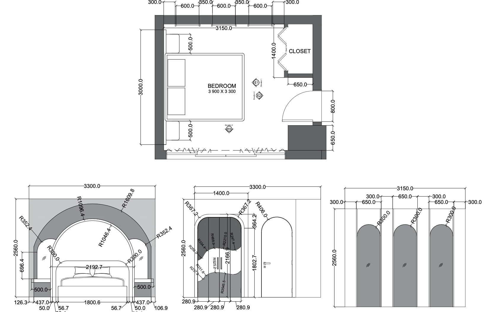
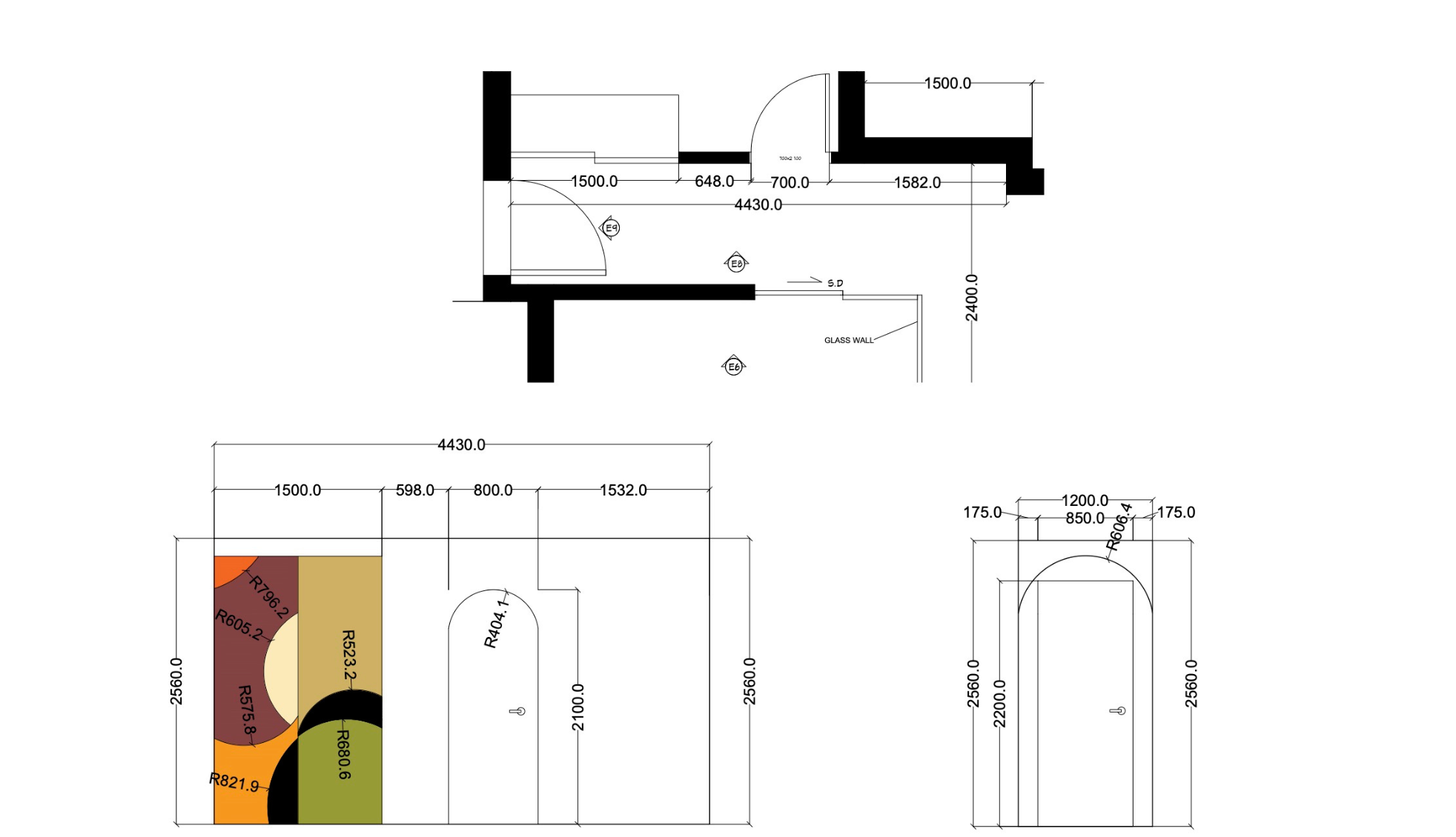
The custom office balances function and art with its wavy desk and soft ambient glow. In the bedroom, arched forms and muted tones create a serene and expansive atmosphere.

Each space reflects a refined balance where contrast, texture, and clean lines come together in elevated harmony.

Previous
Previous

Quiet Miami Resistance

Next
Next

Solstice Cafe